非常全面的地库机电安装工程复盘
家用中央空调水机安装为何日益普及?深入解析其核心优势
小铜丝,大隐患——电梯安装队“留一手”引发的安全反思
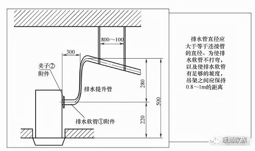
机电安装工程水暖质量创优与细部施工技术参考
产品大全 Product
联系我们 Contact

电话:1537722**

地址:东莞市东城街道主山大塘头新兴街东一区七巷2号铺

网址:www.dgcjkt.com

企业简介 Introduction
东莞市川江空调机电有限公司成立于2016年03月23日,注册地位于东莞市东城街道主山大塘头新兴街东一区七巷2号铺,法定代表人为黄立辉。经营范围包括安装、维修、保养、销售:家用电器、空调设备、热水器;销售:机电设备。(依法须经批准的项目,经相关部门批准后方可开展经营活动)〓
企业信息 Information
企业信息 经营范围

公司名称:东莞市川江空调机电有限公司

法人代表:黄立辉

注册地址:东莞市东城街道主山大塘头新兴街东一区七巷2号铺

所属行业:批发业

更多行业:电气设备批发,机械设备、五金产品及电子产品批发,批发业,批发和零售业

经营范围:安装、维修、保养、销售:家用电器、空调设备、热水器;销售:机电设备。(依法须经批准的项目,经相关部门批准后方可开展经营活动)〓

访客留言
*姓名
*电话
微信
QQ
留言内容